El bloque ha conseguido casi 700.000 € de ayudas del Plan Renove 2018 del Gobierno Vasco para solucionar los problemas actuales que tienen los edificios existentes.

Se trata de una rehabilitación integral de la envolvente térmica del edificio con intervención puntual en la estructura de comunicación vertical con el objeto de introducir un ascensor por portal.

Se cambian las instalaciones de producción de ACS y calefacción. Se incluyen unas nuevas instalaciones de protección contra incendios y ventilación con recuperador de calor.

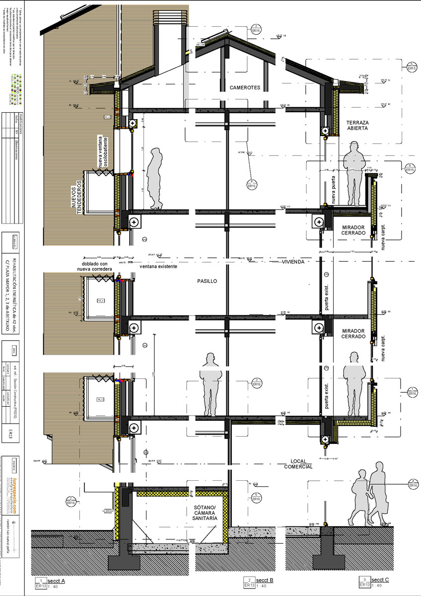
Se plantea revestir térmicamente toda la envolvente global y continua del edificio (incluyendo, además de las fachadas, la cubierta del edificio y la cara inferior del forjado del suelo de las viviendas de planta baja) para minorar los consumos de energía y las emisiones de CO2. Se garantizaría así la correcta eliminación de los puentes térmicos. De esta manera, previendo una correcta ventilación del interior de las viviendas (se proyecta un sistema de VRC), se evitarían las condensaciones anteriormente mencionadas.

En esta nueva envolvente global exterior se incluyen nuevas carpinterías de alta eficiencia con el objetivo de garantizar la continuidad de la envolvente térmica y la envolvente de estanqueidad.

Que la solución de fachada propuesta incorpora una sectorización horizontal EI‐60 en el forjado de cada planta, de manera que se limite la propagación vertical a través de la fachada en caso de incendio.

La solución técnica consiste en ejecutar una nueva envolvente sobre la actual con un sistema SATE (sistema de aislamiento térmico exterior) unido al doblado de nuevas carpinterías sobre las actuales.

Se tendrá especial cuidado en sellar todas las uniones de los nuevos huecos con los lienzos de aislamiento para evitar las infiltraciones.

Se va a ejecutar parte de la envolvente (zona de balcones y galerías) con el sistema de fachada ventilada y el cambio de parte de las carpinterías por otras de alta eficiencia energética ubicadas en la capa de la nueva envolvente térmica.

Proyectos relacionados

Start typing and press Enter to search

Call Now ButtonRehabilitación energética Vitoria